Vaiano: splendida villa libera su 4 lati con giardino
- € 600.000
- Rif. V676
Vaiano, in splendido contesto panoramico di assoluto pregio a due minuti dai servizi, NON SOLO CASE vende villa di recentissima costruzione libera su 4 lati con giardino e accessori.
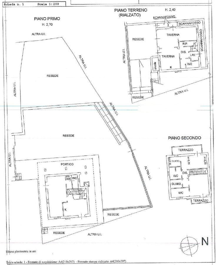
Al piano seminterrato, quasi completamente fuori terra, si trova la taverna accessibile dal resede esterno composta da zona soggiorno, cucina a vista con penisola, bagno, lavanderia con vano tecnico e ripostigli.
Al piano terra ci accoglie un soggiorno di ingresso e la camera matrimoniale principale con accesso al terrazzo, bagno privato e cabina armadio.
Salendo al piano primo abbiamo altre due camere da letto entrambe con cabina armadio, e due servizi di cui uno privato.
La proprietà è circondata sui 4 lati da giardino e da un portico pavimentato.
Finiture di alto livello, parquet, aria condizionata, pannelli per la produzione dell'acqua calda, riscaldamento a pavimento e impianto di allarme con sistema di video sorveglianza, sono le finiture principali di questa meravigliosa proprietà.
Rich. Euro 600.000
Rif. V676
Classe Energetica B
Tel. 0574/470805 - Cell. 392/1309494
"Valuta tutte le nostre proposte su www.nonsolocase.po.it"
- Contratto Vendita
- Tipologia Ville / Villette
- Destinazione Residenziale
- Condizioni Ottime Condizioni
- Riscaldamento Autonomo
- Parcheggio Posto Auto Esterno
- Piano PianoTerra - piani edificio 3
- Anno di Costruzione 2018
- Giardino Privato 600
- Terrazzo Si 15
- Cucina Abitabile
- Arredato Parzialmente Arredato
- Condizionatore
- Allarme
- Porta blindata
- Cucina Abitabile
- Sistema di allarme
- Aria condizionata
- Videocitofono
- Cantina
