La Pietà: storico fondo commerciale con cantina
- € 250.000
- Rif. C705C
Per questo annuncio chiamare il 335 5324284
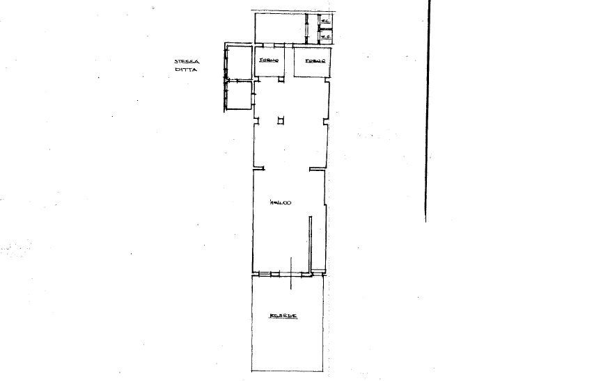
La Pietà: in strada principale a 2 passi dal centro storico, si propone in vendita uno storico fondo commerciale molto visibile di categoria D/1 composto al piano terra da un locale per la vendita, un grande laboratorio sul retro, uno spogliatoio e un bagno con doccia, oltre a una comoda cantina nel vano seminterrato.
L'immobile attualmente è affittato fino a luglio 2026 con un canone di 2.700,00 al mese.
Rich. € 250.000,00
Rif. C705C
Classe Energetica in produzione
Tel. 0574/470805 - Cell. 335 5324284
"Valuta tutte le nostre proposte su www.nonsolocase.po.it"
- Contratto Vendita
- Tipologia Ufficio / Locale commerciale
- Destinazione Commerciale
- Condizioni Stato Originale
- Piano PianoTerra - piani edificio 2
- Anno di Costruzione 1950
- Cucina Cucinotto
- Arredato Parzialmente Arredato
