Centro Storico: fondo commerciale con bagno e retrobottega finestrato
- € 60.000
- Rif. C703
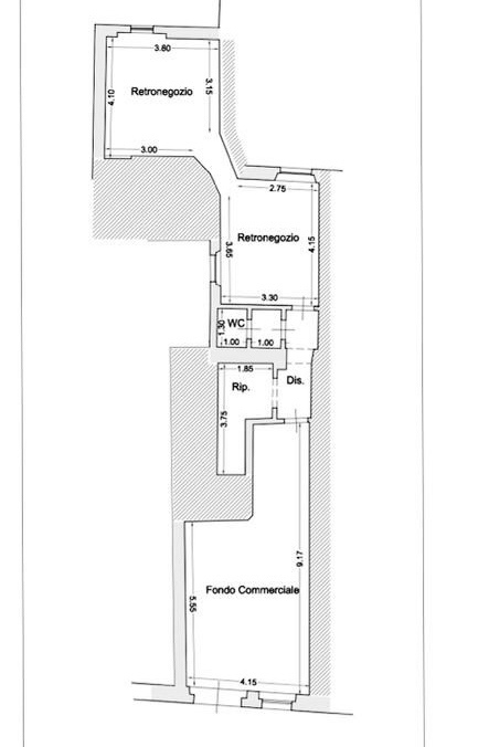
Centro Storico a due passi da Piazza del Duomo su strada di scorrimento, NON SOLO CASE vende un fondo commerciale di oltre 60 mq. suddiviso in stanza frontale, antibagno, bagno e due stanze finestrate nel retro.
Ottimo per piccole attivitą di vendita al dettaglio ma anche per uffici o studi.
Libero subito.
Rich. Euro 60.000
Rif. C703
Classe Energetica E - Ipe 1523,72
Tel. 0574/470805 - Cell. 392/1309494
"Valuta tutte le nostre proposte su www.nonsolocase.po.it"
- Contratto Vendita
- Tipologia Ufficio / Locale commerciale
- Destinazione Commerciale
- Condizioni Buono/Abitabile
- Piano PianoTerra - piani edificio 3
- Anno di Costruzione 1800
- Giardino No
- Terrazzo No
- Balcone No
- Arredato Non Arredato
