Quarrata: porzione di colonica con grande giardino
- € 725.000
- Rif. V669C
Per questo annuncio chiamare il 335 5324284
Quarrata: nei pressi del centro del paese e vicino a tutti i servizi, in posizione panoramica, si propone una porzione di casa colonica libera su 3 lati di cui 2 lati di giardino di circa 1480 mq, con facciata e tetto rifatti nel 2023.
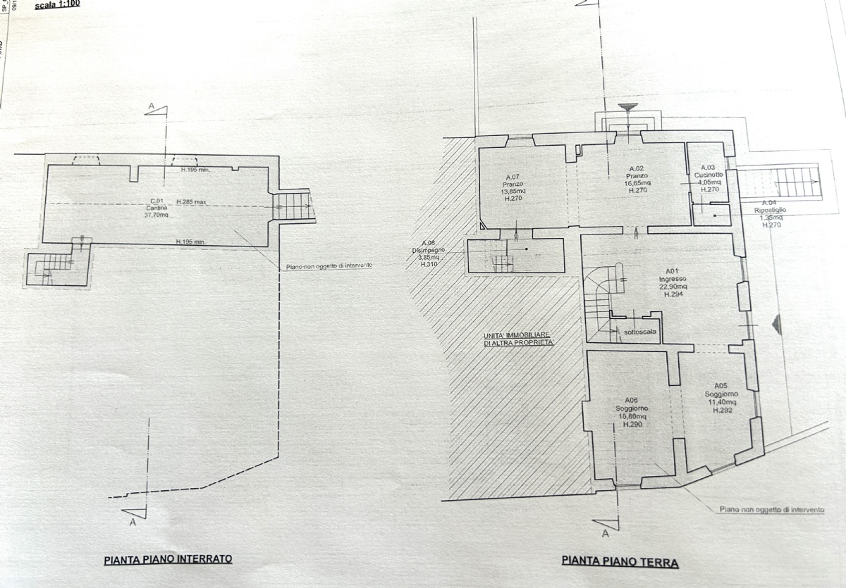
La casa è in stile rustico, con travi a vista e arcate a mattoncini, si sviluppa su 4 livelli; al piano terra troviamo ingresso, e doppio soggiorno, una grandissima sala da pranzo dalla quale si accede al loggiato esterno e al giardino, un cucinotto con finestra e un ripostiglio.
Al piano primo si trovano le 3 camere da letto di cui una con bagno esclusivo, dalla quale si accede a un grande terrazzo di 12 mq e un bagno con vasca e finestra; all'ultimo piano c'è la soffitta accessibile da una scala retrattile, in gran parte vivibile con altezze fino a 2,80 m, attualmente a grezzo.
Al piano seminterrato si trova una grande e comoda cantina.
All'esterno oltre all'ampio giardino si trovano 2 posti auto coperti, e una resede lastricata di fronte all'ingresso della colonica.
La proprietà si trova in buone condizioni, le rifiniture sono buone, cotto al piano terra e parquet, infissi di legno e doppio vetro, termosingolo con impianto fotovoltaico appena fatto,,e un pozzo di proprietà esclusiva assicura l'acqua per tutti gli usi.
Rich.€ 725.000,00 tratt.
Rif. V669C
Classe Energetica F - Ipe 252,31 kWh/mq./anno
Tel. 0574/470805 - Cell. 335/5324284
"Valuta tutte le nostre proposte su www.nonsolocase.po.it"
- Contratto Vendita
- Tipologia Rustico / Colonica
- Destinazione Residenziale
- Condizioni Ottime Condizioni
- Riscaldamento Autonomo
- Parcheggio Posto Auto Coperto
- Piano PianoTerra - piani edificio 4
- Anno di Costruzione 1930
- Giardino Privato giardino privato
- Descrizione Giardino giardino a prato verde su 2 lati di 1483 mq
- Terrazzo Si 12 mq totali
- Balcone Si
- Cucina Cucinotto
- Arredato Parzialmente Arredato
- Aria condizionata
- Cantina
